上本町(谷町9丁目)エリアの1階路面事務所【駐車場付き】

ビル名:東平西原ハイツ
住 所:大阪府大阪市中央区東平2丁目3番22号
【ポイント】
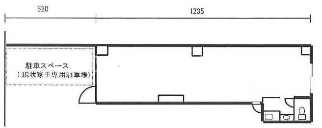
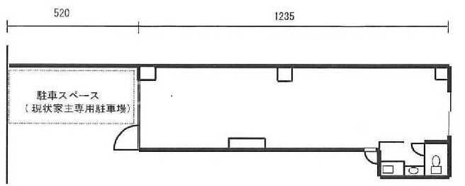
1階の路面事務所
前面の駐車場スペースはハイルーフも駐車可能
【アクセス・MAP】
★近鉄難波・奈良線・・・・・【大阪上本町】徒歩2分
★大阪メトロ谷町線・・・・・・・・【谷町九丁目】徒歩3分
★梅田駅まで・・・・・・・・・・・・電車で19分/車で15分
★新大阪駅まで・・・・・・・・・・・電車で57分/車で55分
★関西空港まで・・・・・・・・・・・電車で73分/車で64分
★大阪空港まで・・・・・・・・・・・電車で46分/車で21分
【地図】

【ビルスペック】
▲ 竣工年月日 / 耐震基準・・・・・・1990年4月10日竣工/新耐震
▲ 構造・・・・・・・・・・・・・・鉄骨造
▲ ビル規模・・・・・・・・・・・・地上9階(2階より上は住居)
▲ 建物用途/区分・・・・・・・・・事務所(駐車場)・住居
【建物設備/施設】
▲エレベーター
→有(1基)※住居側エントランス
▲セキュリティ
→無し
▲ 空調
→個別空調
▲ トイレ
→専用部/洋式・シャワートイレ
▲シンク
→有(手洗い)
▲ 光ケーブル【電話線】
→引き込み可能
▲ 駐車場
→有(前面にスペース有)
▲ 駐輪場
→有(前面にスペース有)
【物件写真】








【レポート担当者コメント】
この度、募集窓口をさせて頂いている、≪東平西原ハイツ≫
希少性の髙い、路面事務所区画です。
周辺は静かな環境ながら、各最寄り駅からも徒歩圏内でアクセス性◎
前面には駐車スペース(料金は賃料に含む)もあり、ハイルーフの駐車も可能です。
また、駐輪場としても利用できるので、複数台の自転車の駐輪も可能となっております。
機材の搬入が多い、建設関係の事務所やイベント企画会社の事務所はもちろん、
複数台の自転車が駐輪できるので、訪問型ヘルパーの事務所でも使い勝手が良いと思います。
金額面ですが周辺駐車場の料金相場をみた所、
駐車場料金+賃料で考えると非常にローコストとなっております。
是非ご検討下さいませ。
現段階(2024/11/8)では空室も御座いますので、
是非、お問合せ下さいませ。