
【住所】
大阪府大阪市西区江戸堀1丁目15番11号

【沿線】
大阪メトロ四ツ橋線・・・・・肥後橋駅 徒歩1分
大阪メトロ御堂筋線・・・・・淀屋橋駅 徒歩7分
【アクセス】
梅田駅からのアクセス・・・・・電車11分 車8分
新大阪からのアクセス・・・・・電車18分 車13分
関西空港からのアクセス・・・・電車1時間6分 車41分
伊丹空港からのアクセス・・・・電車39分 車21分
【構造・規模】
鉄骨造 5階建
【竣工年月日】
1993年築(新耐震)
【設備】
EV・・・・・・・有
トイレ・・・・・ 有(男女別)
駐車場・・・・・無
駐輪場・・・・・有(要相談)
共用施設・・・・貸会議室有 テレフォンBOX 喫煙所【NEW】




≪貸会議室≫



【室内】
部屋内個別警備・・有
個別空調・・・・・有
床使用・・・・OAフロア
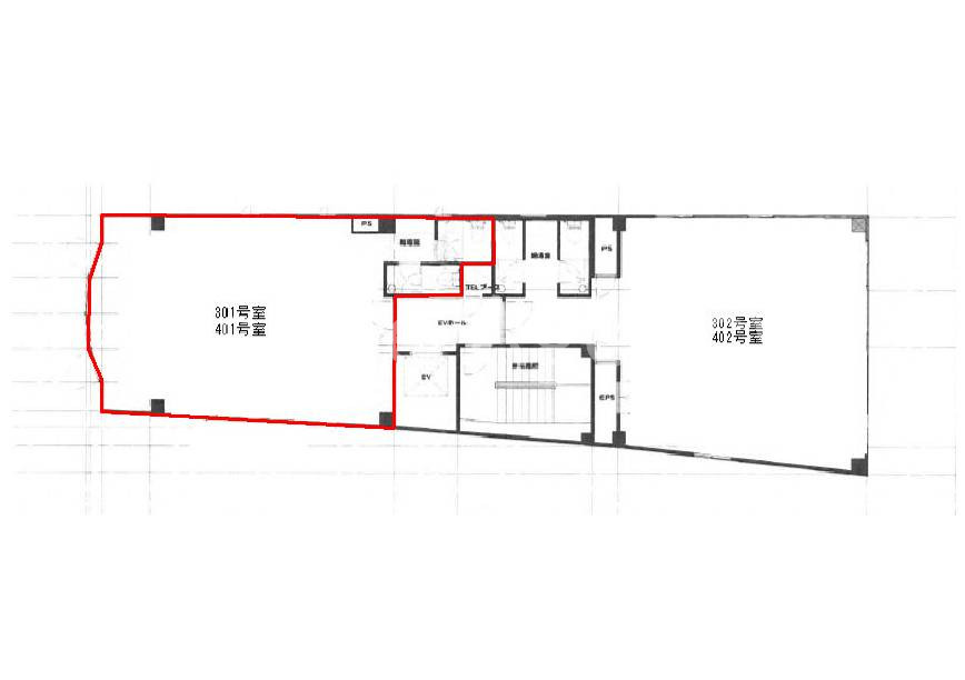
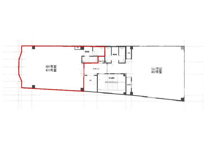
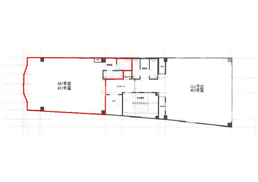
【募集区画】 3階 301号室 19.9坪





弊社窓口物件の新規空き区画です!
前回募集時にはあっという間に満室になった人気デザーナーズ物件。
区画も道路側のお部屋で1番の人気区画です。
喫煙所(電子オンリー)も新たに併設され、バージョンアップしての募集です。
好評の貸会議室も運営中!
事前にご連絡頂きましたら内見も可能なので、是非!!
お問合せはエステートエージェンシー迄。