
【住所】
大阪府大阪市西区江戸堀1丁目15番11号

【沿線】
大阪メトロ四ツ橋線・・・・・肥後橋駅 徒歩1分
大阪メトロ御堂筋線・・・・・淀屋橋駅 徒歩7分
【アクセス】
梅田駅からのアクセス・・・・・電車11分 車8分
新大阪からのアクセス・・・・・電車18分 車13分
関西空港からのアクセス・・・・電車1時間6分 車41分
伊丹空港からのアクセス・・・・電車39分 車21分
【構造・規模】
鉄骨造 5階建
【竣工年月日】
1993年築(新耐震)
【設備】
EV・・・・・・・有
トイレ・・・・・ 有(男女別)
駐車場・・・・・無
駐輪場・・・・・有(要相談)
共用施設・・・・貸会議室有 テレフォンBOX





≪貸会議室≫


【室内】
部屋内個別警備・・有
個別空調・・・・・有
床使用・・・・OAフロア

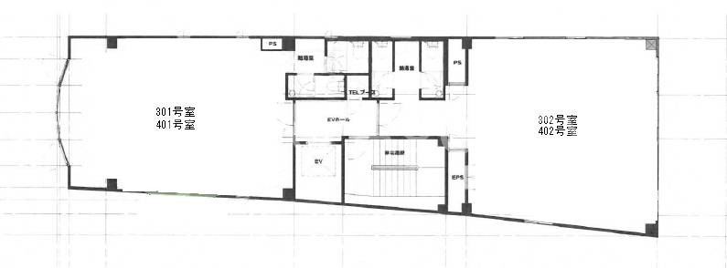
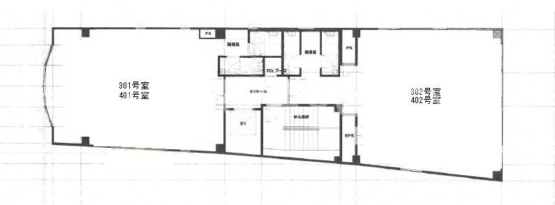
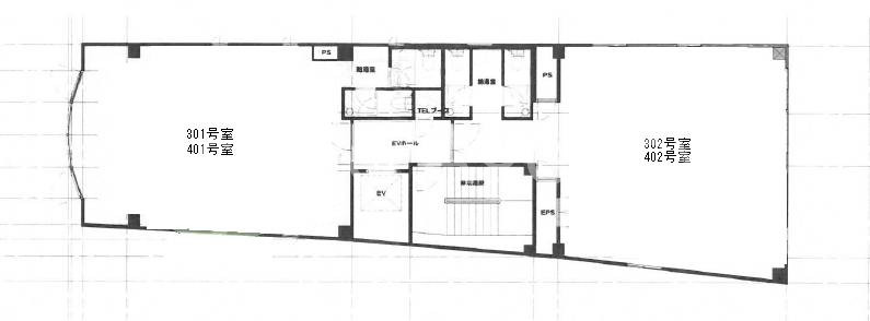
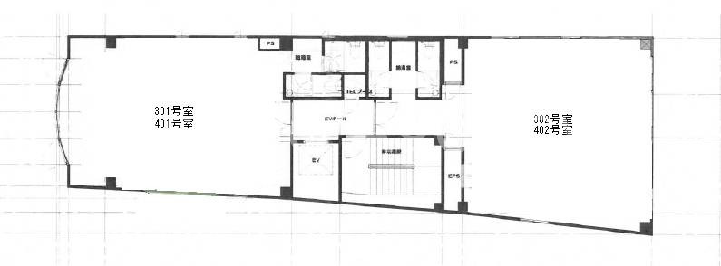
≪301・401号室≫



≪302・402号室≫



【募集区画】
3階 301号室 19.9坪
3階 302号室 22.2坪
4階 401号室 19.9坪
4階 402号室 22.2坪
※ワンフロア42.1坪でも賃貸可
弊社新規窓口物件のご紹介です!
肥後橋駅徒歩1分の好立地にそびえるデザイナーズ物件。
デザイナーズ内装に定評のある株式会社ヴィスが施工のスタイリッシュなオフィス空間
センターコアのワンフロアに2区画。道路側は勿論の事、反対側のお部屋も採光◎
入居テナントには嬉しい貸会議室も併設しております。
内見もいつでも出来ますので、お問合せはエステートエージェンシー迄。